Dicke Bertha

50 people

Dicke Bertha

50 people

Dicke Bertha

50 people

Conference location in the countryside of Berlin Brandenburg

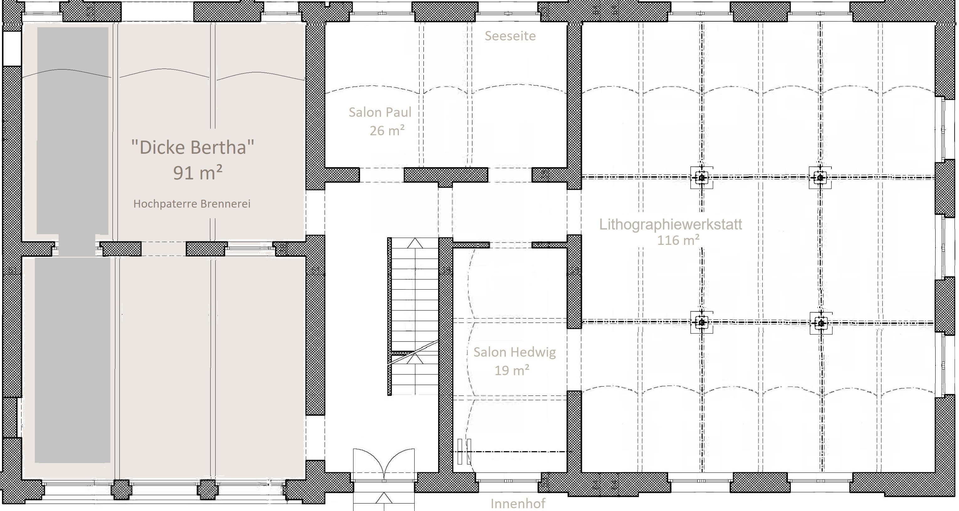
Dicke Bertha - 91 m2

You can find the 'Dicke Bertha' in the Brennerei building.

Together in a team of up to 20 people you will work on our 'Dicke Bertha' - an original Borsig steam engine weighing 26.5 tons. Get unique insights into future-oriented technology and solve the riddle of the connecting rod cover plate. Get your steam engine maintenance certificate! A unique incentive that is only offered by us.

  • looking west with lake view
  • ceiling height 4.5m, open to 9.1m
  • no darkening possible
  • historic brick floor
  • no barrier-free access

 

inquire conference
room booking
virtual 3D tour

Inquire conference

Inquiry form conferences

What is the sum of 8 and 3?