Salon Paul

12 people

Salon Paul

12 people

Salon Paul

12 people

Certified meetings at a lake near Berlin

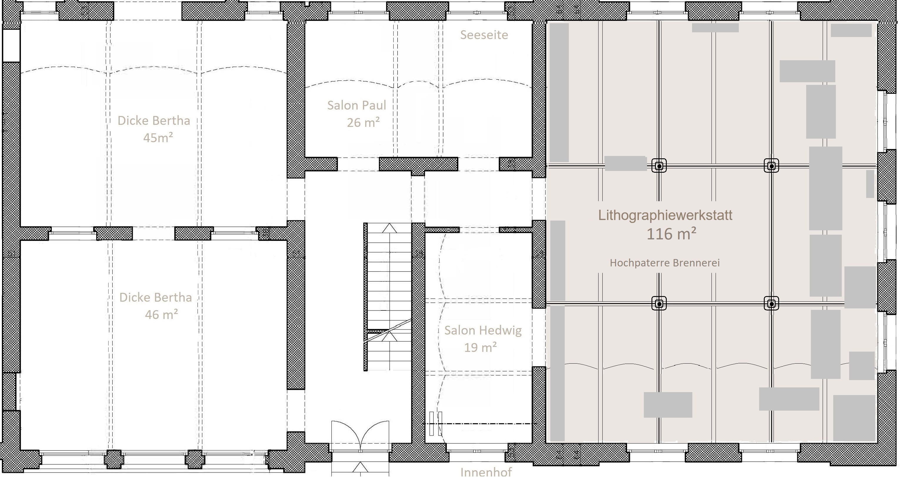
Salon Paul - 26m2

Salon Paul is located on the mezzanine floor of the Brennerei building. The Prussian capped ceilings, brick walls and floors, as well as the two original steel lattice arched windows and a phenomenal view of the park and Lake Groß Behnitz give the room its unique atmosphere. A permanently installed large screen ensures uncomplicated working. The salon is ideal for meetings for up to eight people.

  • view: west
  • room height: 2.7 - 3.0 m
  • no darkeing possible
  • historic brick flooring
  • historic brick walls and ceilings

Landgut Stober

inquire conference
room booking
virtual 3D tour

Inquire conference

Inquiry form conferences

What is the sum of 4 and 5?